设为首页 企业邮局 销售网络
 欢迎访问浙江中正阀门有限公司网站,主要产品有电站阀、闸阀、截止阀、止回阀、球阀、蝶阀、及非标阀门等几十个品种,敬请光顾!
 
    产品参数
    产品图片
 
 · 电站阀门系列
 
 
 · 通用阀门系列
 
 
 · 美标阀门系列
 
 

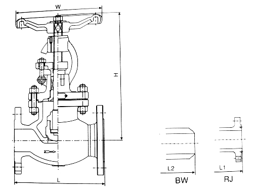
J41H型截止阀

J41H型
典型零件材料表
序号 零件名称 WCB C5 WC6 CF8 CF8M
1 阀体 A216 WCB A217 C5 A217 Wc6 A351 CF8 A351 CF8M
4 阀杠 A182 F6a A182 F6a A182 F6a A182 F6a A479 316
5 螺栓 A193 B7 A193 B7 A193 B7 A193 B8 A193 B8M
6 螺母 A194 2H A194 2H A194 2H A194 8 A194 8M
7 垫片150Lb 石墨GHE Graphite sheet
垫片300Lb 304夹柔性石墨 Spiral wound
垫片≥600Lb F304 Spiral wound
8 阀盖 A216 WCB A217 C5 A217 Wc6 A351 Cf8 A351 CF8M
9 上密封阀 A182 F6a A182 F6a A182 F6a A182 F304 A182 F316
10 填料   Pillar 6610+6528
11 隔环 A182 F6a A182 F6a A182 F6a A182 F304 A182 F316
12 填料压套 A182 F6a A182 F6a A182 F6a A182 F304 A182 F316
13 填料夹板 A216 WCB A216 WCB A216 WCB A351 CF8 A351 CF8
14 活结螺栓 A193 B7 A193 B7 A193 B7 A193 B7 A193 B8
15 螺母 A194 2H A194 2H A194 2H A194 2H A194 8
16 横销 1035 1035 1035 304 304
17 阀杠螺母 A439 Type D2 A439 Type D2 A439 Type D2 A439 Type D2 A439 Type D2
18 缩紧螺母 1035 1035 1035 1035 1035
19 止定螺钉 1035 1035 1035 1035 1035
20 手轮 AISI 1118 AISI 1118 AISI 1118 AISI 1118 AISI 1118
23 铭牌 AISI 304 AISI 304 AISI 304 AISI 304 AISI 304
24 铆钉 AL AL AL AL AL
34 阀瓣 A105/STL.6 A335-P5/STL.6 A182 F11/STL.6 A182 F304 A182 F316
36 阀瓣盖 1035 304 304 304 316
39 垫块 410 410 410 304 304
44 垫圈 1035 1035 1035 1035 1035

CL150

规格(NPS) in 2 21/2 3 4 5 6 8 10 12 14 16 18 20 24
结构长度(mm) L 203 216 241 292 356 406 495 622 698 787 914 978 978 1295
L1 216 229 254 305 369 419 508 635 711 800 927 991 991 1308
L2 203 216 241 292 356 406 495 622 698 787 914 978 978 1295
中心高度(mm) H 350 362 385 490 455 537 707 788 820 898 930 980 1028 1134
手轮直径(mm) W 220 250 280 320 320 400 450 560 580 - - - - -
重量(kg) 21 29 34 54 72 93 185 268 400 650 1113 - - -
CL300
规格(NPS) in 2 21/2 3 4 5 6 8 10 12 14 16 18 20 24
结构长度(mm) L 267 292 318 356 400 445 559 622 711 838 864 978 1016 1346
L1 283 308 334 372 416 461 575 638 727 854 880 994 1035 1368
L2 267 292 318 356 400 445 559 622 711 828 864 978 1016 1346
中心高度(mm) H 345 377 405 468 620 708 777 935 955 961 1010 1060 1110 1249
手轮直径(mm) W 220 350 280 320 400 450 500 560 600 - - - - -
重量(kg) 28 36 50 75 140 200 287 510 720 - - - - -
CL600
规格(NPS) in 2 21/2 3 4 5 6 8 10 12 14 16
结构长度(mm) L 292 330 356 432 508 559 660 787 838 889 991
L1 295 333 359 435 511 562 663 790 841 892 994
L2 292 330 356 432 508 559 660 787 838 889 991
中心高度(mm) H 385 430 475 685 770 901 913 1060 1227 1320 1540
手轮直径(mm) W 285 280 320 400 500 550 600 650 760 - -
重量(kg) 32 45 62 139 240 342 483 870 1067 - -
CL900
规格(NPS) in 2 21/2 3 4 6 8 10 12 14 16
结构长度(mm) L 368 419 381 457 610 737 838 965 1029 1130
L1 368 419 381 457 610 737 838 965 1029 1130
L2 371 422 384 460 613 740 841 968 1039 1140
中心高度(mm) H 430 580 675 780 870 980 1010 1300 1400 1600
手轮直径(mm) W 320 320 350 500 850 560 - - - -
重量(kg) 58 92 144 225 502 720 - - - -
CL1500
规格(NPS) in 2 21/2 3 4 6 8 10 12 14 16
结构长度(mm) L 368 419 470 546 705 832 991 1130 1257  
L1 371 422 473 549 711 842 1001 1146 1276  
L2 368 419 470 546 705 832 991 1130 1257  
中心高度(mm) H 430 500 750 820 910 1015 1035 1350 1460  
手轮直径(mm) W 320 400 450 600 700 800 - - -  
重量(kg) 66 115 188 292 620 808 - - -  
 
2006-2007 版权所有-浙江中正阀门有限公司Copyright©ZHEJIANG ZhongZheng VALVE CO.,LTD.All Right Reserved.
电话:0577-67375908 67375255 传真:0577-67973776 Email:china@zjzz-valve.com 浙ICP备09028919号